Jan 26th, 2021
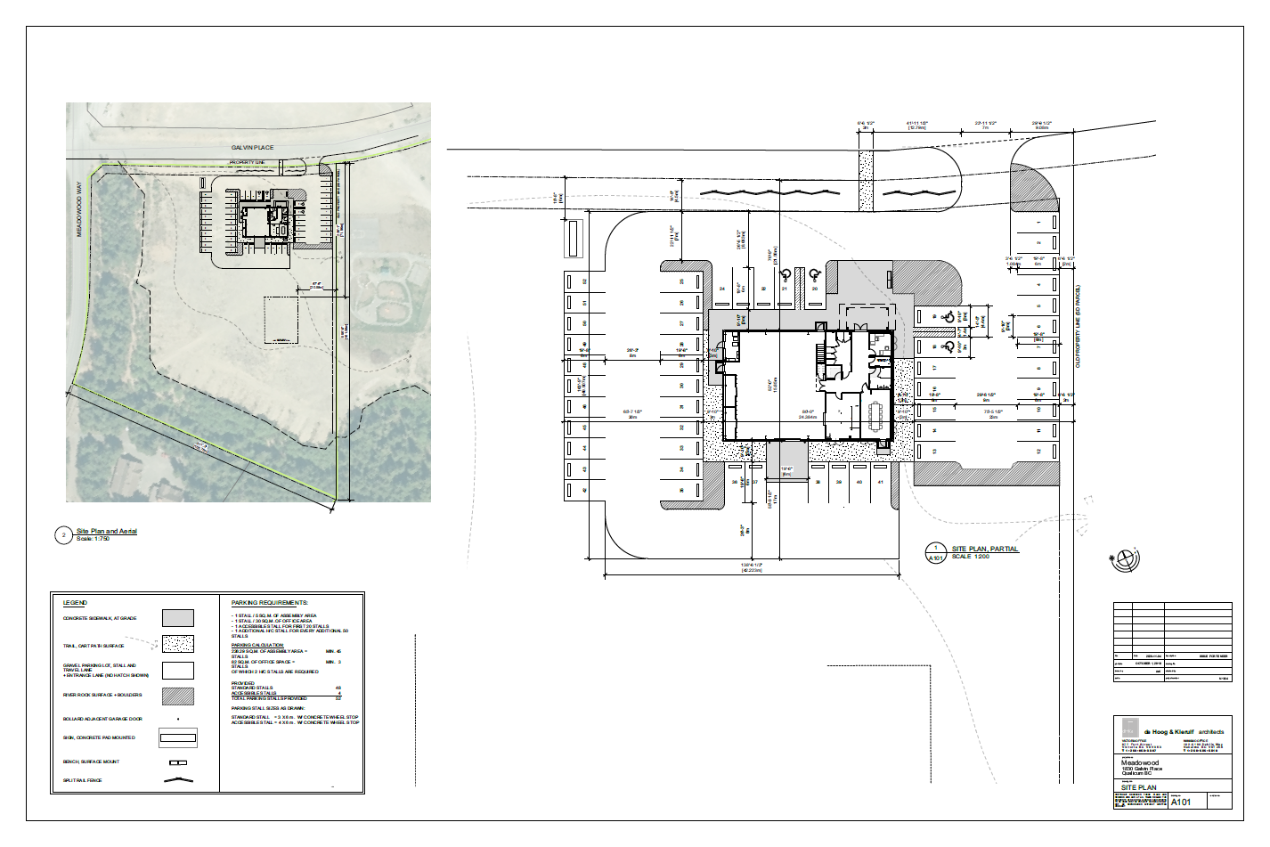
The Regional District of Nanaimo Board gave the final go ahead for the MCC today. The board voted to allocate 2.2 million dollars and award the construction contract for the new Meadowood Community Centre. This is a very big day for our community. Construction is expected to start very soon and its hoped the MCC will be ready for booking in the fall of 2021.



